NUEVA PROMOCIÓN
FASE 3 2026-2027
¡¡¡en venta! ! !

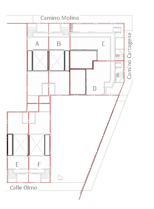
TABLA SUPERFICIES Y ESTADO DE VENTA
VIVIENDA A (201 M2 ) RESERVADA
VIVIENDA B (190 M2 ) RESERVADA
VIVIENDA C (210 M2 ) RESERVADA
VIVIENDA D (201 M2 ) DISPONIBLE
VIVIENDA E (184 M2 ) RESERVADA
VIVIENDA F (197 M2 ) DISPONIBLE


Nota: Las imágenes son bocetos orientativos, que podrán variar según criterio de la promotora o técnicos.
6 VIVIENDAS UNIFAMILIARES ADOSADAS EN TERCIA
Nueva construcción de seis viviendas adosadas, en la ampliación de la urbanización consolidada Villatercia - Lorca (Murcia)
VIVIENDA UNIFAMILIAR ADOSADA, CON GARAJE Y TRASTERO EN SEMISÓTANO
Situación: Calle del Olmo, Calle Molinas y Camino Cartagena, Tercia. Lorca (Murcia)
Viviendas unifamiliares, adosadas, sin espacios comunes ni cuentas comunes.
Distribución, semisótano con garaje y trastero/lavadero. Zona de día en planta baja con zona estar, zona comedor y espacio cocina e isla. Planta alta distribuida en 3 dormitorios, baño común, el dormitorio principal cuenta con baño propio y vestidor.
Confort térmico, aislamientos 8-10 cm en fachada y cubierta, ventanas con alta rotura de puente térmico (24mm), vidrios de seguridad y cámara.
Altas calidades, aplacados en fachada, suelo porcelánico de gran formato o laminado, vidrios de seguridad, escalera de acero, aerotermia para ACS, sanitarios ROCA, inodoros suspendidos, pre-instalación chimenea pellets, puerta automática de garaje, etc....